Skip to Main Content

THE winter woods

THE 50’ SERIES

ELEVATION A, B & C - 2868-2888 SQ. FT.


Bedroom Icon 4 BEDROOMS

Bathroom Icon 3.5 BATHROOMS

DOWNLOAD PDF

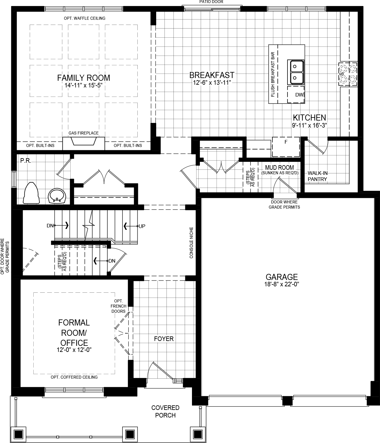
Ground Floor

Ground Floor |Second Floor |Basement
Elevation A floorplan

Ground Floor

Elevation A

Elevation B floorplan

Ground Floor

Elevation B

Elevation C floorplan

Ground Floor

Elevation C

Second Floor

Ground Floor |Second Floor |Basement
Elevation A floorplan

Second Floor

Elevation A

Elevation B floorplan

Second Floor

Elevation B

Elevation C floorplan

Second Floor

Elevation C

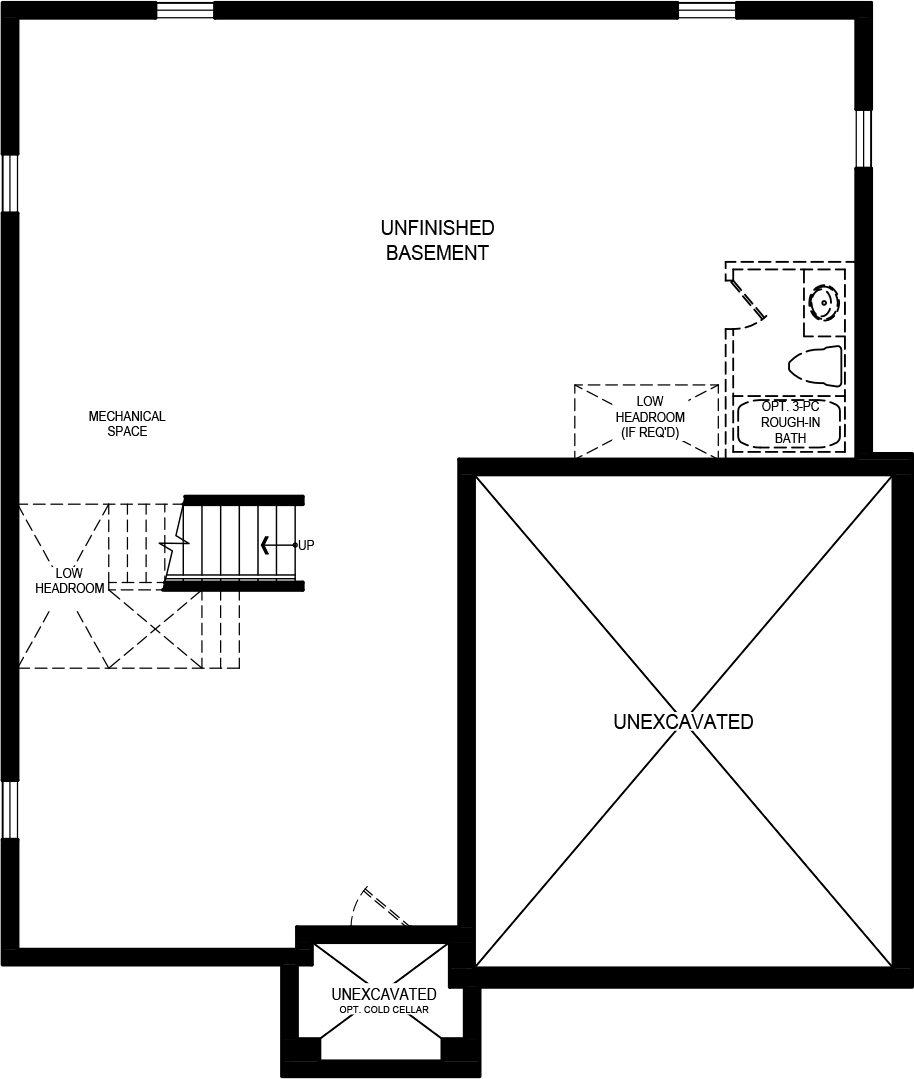
Basement

Elevation A floorplan

Basement

Elevation A

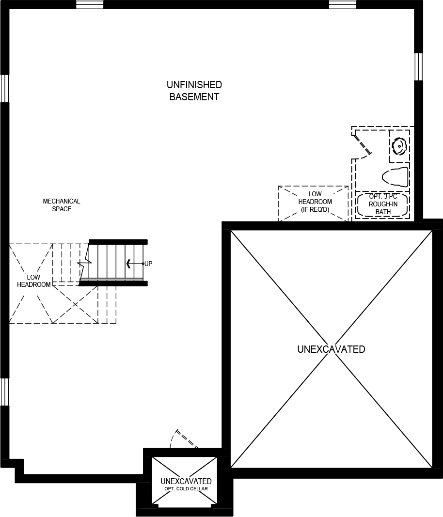
Elevation B floorplan

Basement

Elevation B

Elevation C floorplan

Basement

Elevation C

The floor plans and elevations shown are pre-construction plans and may be revised or improved as necessitated by architectural controls and the construction process. The measurements adhere to the rules and regulations of the TARION Warranty Corporation's official method for the calculation of floor area. Actual usable floor space may vary from the stated floor area. Railings on front porch only where required by O.B.C. All inside coffered celling and heights are approxiamate. All images and landscaping are artist's concept only and not indicative of what purchaser is actually getting. E. & O. E. December 2025 Winter woods